Ves al contingut.
Salta a la navegació
Inici
Mapa del lloc
Accessibilitat
Webmail
Politica de galetes
Cerca en el lloc
El Consell General
Organització institucional
Activitat parlamentària
Documentació
Menu
Escoltar
Sou a:
Inici
/
ca
/
Notícies
/
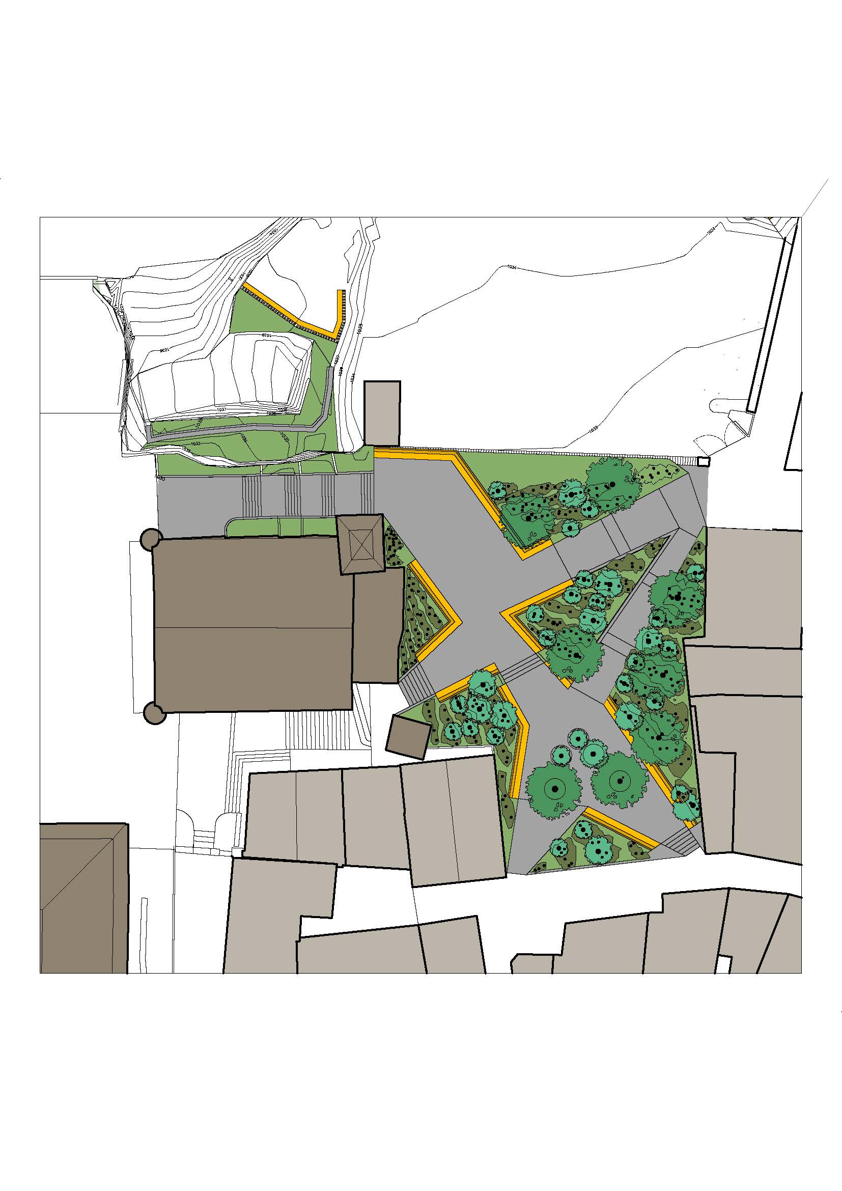
El Consell General preveu començar les obres de millora del paviment de la part posterior de Casa de la Vall aquest estiu.
/
Plànol obres de millora Casa de la Vall.jpg
Info
Plànol obres de millora Casa de la Vall.jpg
Imatge a mida completa:
269 KB
|
Visualitza
Descarrega
Back to top