El Consell General preveu començar les obres de millora del paviment de la part posterior de Casa de la Vall aquest estiu.
El Consell General ha publicat un concurs per a la remodelació del paviment i de l’enjardinament de la plaça posterior a Casa de la Vall. Les ofertes, tal i com recull l’edicte publicat al BOPA, es podran presentar fins el vint-i-tres (23) de juny vinent a les tres de la tarda.
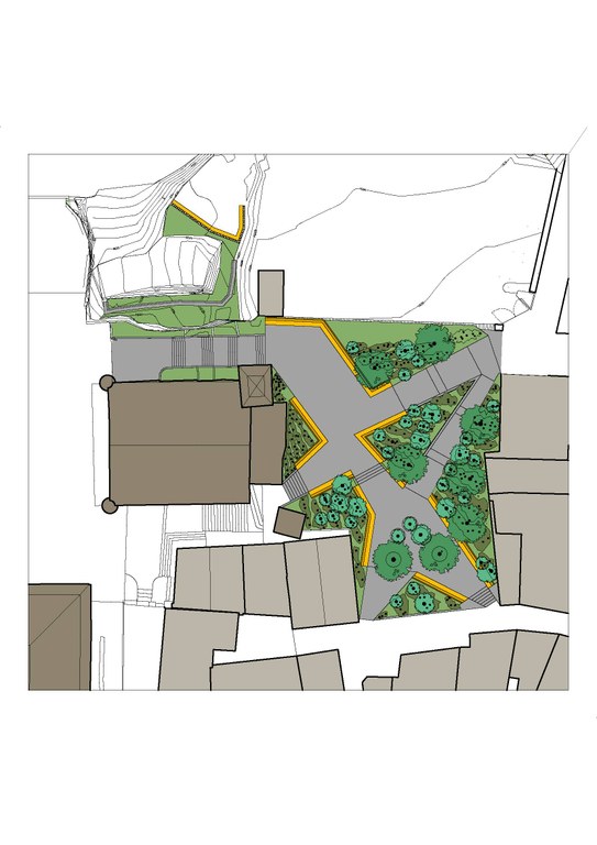
L’obra d’adequació s’executarà aquest estiu i consistirà en canviar el paviment, molt malmès en algunes parts, a fi de facilitar l’ús d’aquest espai als ciutadans. Alhora es volen eliminar barreres arquitectòniques i renovar la part dels jardins amb plantes autòctones.
Per executar el condicionament del sòl s’utilitzarà la pedra de granet rugós natural com a element constructiu prioritari, amb l'objectiu d'integrar l'espai en l'entorn, així com per minimitzar el manteniment. Pel que fa a la zona enjardinada es representaran els tres ambients més característics d'Andorra.
Es preveu que les obres d'adequació comencin el juliol i que durin uns cinc (5) mesos.
L’estimació base de la remodelació és de 577.372 euros.
